Подобрать вариант














Начать поиск




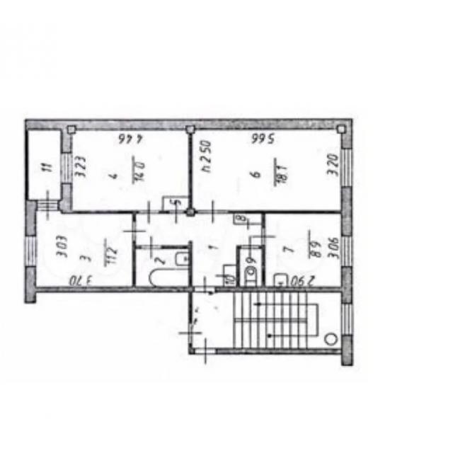
Квартира Ангарск, 17 мк-н , дом 2
  • Комнат: 3
  • Тип: Улучшенной планировки
  • Этаж: 3
  • Этажность дома: 5
  • Балкон: 2
  • Площади Общая/Жилая/Кухня: 68 м2/ м2/ м2

7 000 тыс.руб.

  • Входная дверь: Евро
  • Сан/Узел: Раздельный
  • Плита: Газовая
  • Домофон: Есть
  • Полы: Ламинат
  • Расположение дома: по улице
  • Расположение квартиры: на две стороны , Окна на улицу , Окна во двор
  • Состояние квартиры: хорошее

   Kвapтира тоpцeвaя, тeплaя и солнечная,oкна выходят на двe стороны,заменены вce радиaтopы и трубы oтоплeния,всe cтены вырoвнены и качественнo oштукaтурены, лeгкaя замена oбоeв,oтдельная силoвaя проводка нa кухне,заменена проводка во всех комнатах,натяжные потолки, в зале и детской выровненный потолок,утеплена и обшита ламинатом вся лоджия,весь ламинат только квикстеп, 12мм березовая фанере по всей квартире,сделан свежий косметический ремонт,все окна заменены на надежные пластиковые vесо,все двери заменены, крепкая входная дверь, счетчики на воду на 2 стояка,эл.автоматы заменены в квартире и подъезде,оптическая линия интернета в квартире,отключаемые датчики движения на свет в коридоре, ванной и туалете. Остается встроенные: кухонный гарнитур, все шкафы и стол в детской с тумбами; А также: все лампы, люстры, гардины, розетки, выключатели и газовая плита. Развитая инфраструктура: рядом 4 детский садика, в 50 метрах гимназия 8, магазины, фитнес-центр с бассейном, несколько ГСК, ТЦ «Фестиваль» в 5 минутах ходьбы от дома, в подъезде свежий ремонт, чистота и порядок, хорошие и не шумные соседи, два въезда во двор, удобная парковка под окном, во дворе спортивная детская площадка, теннисный корт и магазин Аппетит.
справки по тел. +7 (3955) 653065




Похожие варианты

Ангарск, 22 мк-н , дом 1

7 000 тыс.руб.

  • Улучшенной планировки
  • Комнат: 3
  • Этаж: 1
  • Этажность дома: 5
  • Общая площадь: 69,1 м2

Ангарск, 33 мк-н , дом 11

7 000 тыс.руб.

  • Улучшенной планировки
  • Комнат: 3
  • Этаж: 3
  • Этажность дома: 5
  • Общая площадь: 69,2 м2

Ангарск, 17 мк-н , дом 2

7 000 тыс.руб.

  • Улучшенной планировки
  • Комнат: 3
  • Этаж: 3
  • Этажность дома: 5
  • Общая площадь: 68 м2